Деревянная баня ФП 311
| Общая площадь | 18 кв.м. |
| Тепловой контур | 18 кв.м. |
| Конструктив Фахверк | Венцовый конструктив | |
|---|---|---|
| Стоимость заводского сборочного комплекта | 240 000 P |
X |
| Стоимость монтажа сборочного комплекта | 90 000 P |
X |
Деревянная баня из клееного бруса КБ-311
Возводится по технологии фахверк-палисад
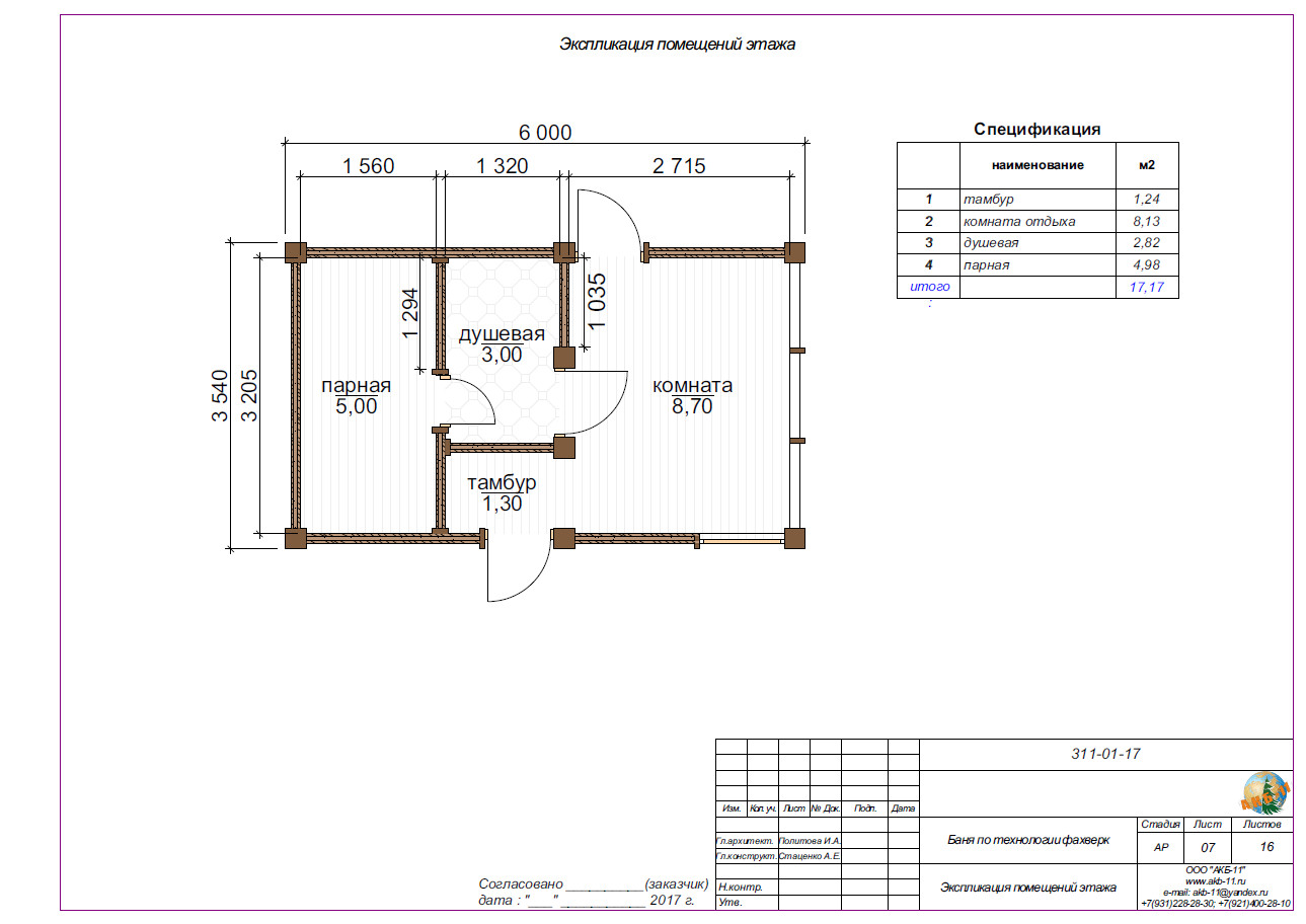
Площадь теплового контура: 22м2
Габаритные размеры: 3,6х6м.
Высота 1 этажа: 2,15м
Высота сооружения 3,4м
Баня изготавливается в летней (комфортная эксплуатация при температуре наружного воздуха до -5 град.С) и зимней (комфортная эксплуатация при температуре наружного воздуха до -55 град.С) компоновке. В бане запроектированы: комната отдыха со встроенной кухней, тепловой тамбур, парная, душевая. Базовая цена домокомплекта указана в таблице.
В стоимость заводского сборочного комплекта не включена стоимость доставки.
Стоимость, возведенного базового сооружения на винтовых сваях, крыша – ондулин, окна (4 шт) обычные деревянные, двери (3 шт) –цельные деревянные, утепленные перекрытия, пол- половая доска, составляет 550 000руб.
Опции:
- встроенная мебель (столы, скамейки, полоки, согласно эскиза) – 45 000руб.
- электротехническая проводка – 25 000руб.
- сантехническое подключение – 15 000руб.
Печка, душевая кабинка, кухонное оборудование - подбираются отдельно.
Возводится по технологии фахверк-палисад
Площадь теплового контура: 22м2
Габаритные размеры: 3,6х6м.
Высота 1 этажа: 2,15м
Высота сооружения 3,4м
Баня изготавливается в летней (комфортная эксплуатация при температуре наружного воздуха до -5 град.С) и зимней (комфортная эксплуатация при температуре наружного воздуха до -55 град.С) компоновке. В бане запроектированы: комната отдыха со встроенной кухней, тепловой тамбур, парная, душевая. Базовая цена домокомплекта указана в таблице.
В стоимость заводского сборочного комплекта не включена стоимость доставки.
Стоимость, возведенного базового сооружения на винтовых сваях, крыша – ондулин, окна (4 шт) обычные деревянные, двери (3 шт) –цельные деревянные, утепленные перекрытия, пол- половая доска, составляет 550 000руб.
Опции:
- встроенная мебель (столы, скамейки, полоки, согласно эскиза) – 45 000руб.
- электротехническая проводка – 25 000руб.
- сантехническое подключение – 15 000руб.
Печка, душевая кабинка, кухонное оборудование - подбираются отдельно.
← Назад в раздел
